Zapraszam do obejrzenia wirtualnego spaceru po nieruchomości
Poszukujesz ładnego, słonecznego mieszkania na wynajem? Może lubisz spędzać czas wśród zieleni i wody na pobliskim Jeziorku Czerniakowskim lub interesuje Cię dobrze skomunikowane, ale ciche mieszkanie?
Możesz śmiało przejść do dalszej części opisu fantastycznego trzypokojowego mieszkania na wynajem na Mokotowskiej Sadybie niedaleko Sadyba Best Mall.
W SKRÓCIE:
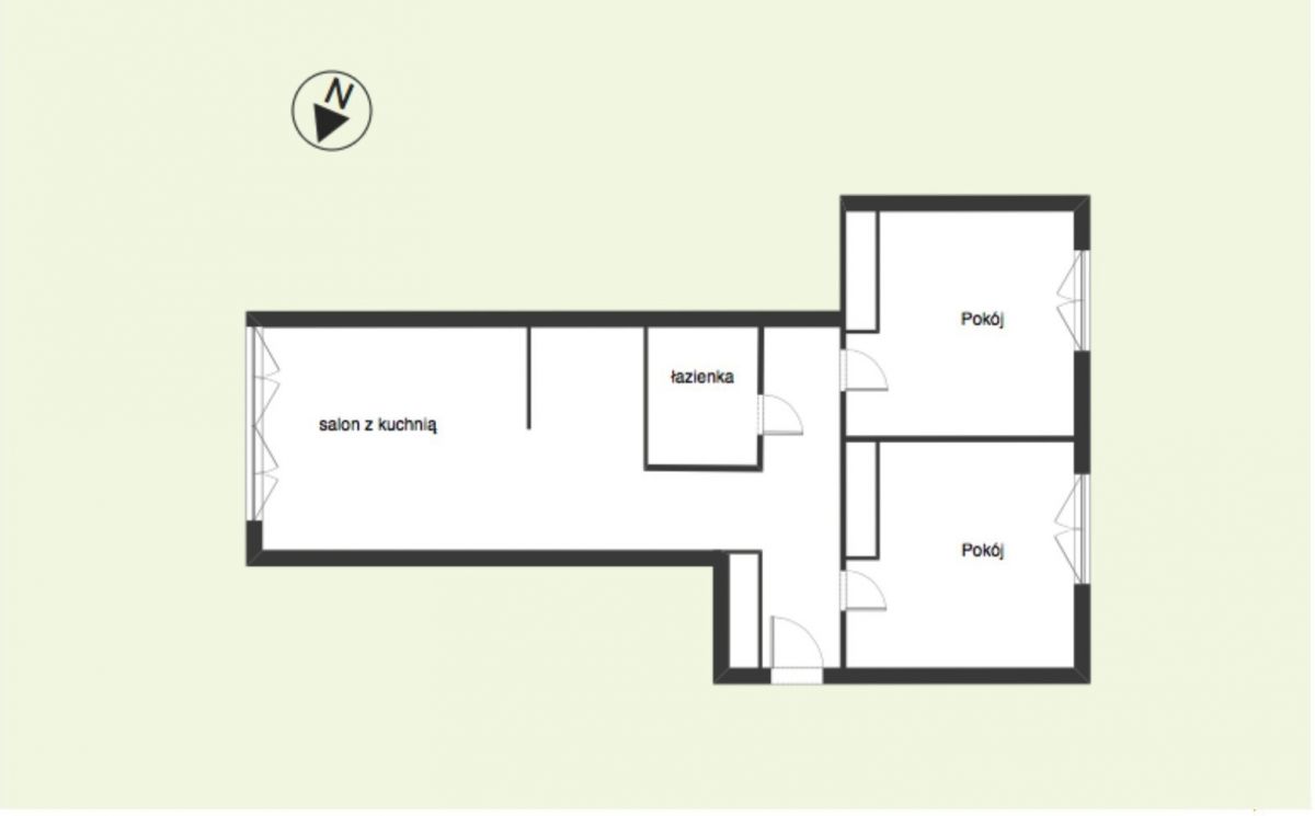
Proponowane mieszkanie znajduje się w spokojnej i cichej okolicy: zaraz obok ulicy Wiertniczej. Stąd do autobusu mamy 150 m. Mieszkanie składa się z trzech pokoi, kuchni otwartej na salon w pełni wyposażonej w sprawne sprzęty AGD. Funkcjonalna łazienka wyposażona jest dodatkowo w pralkę. W przedpokoju oraz dwóch sypialniach trzy pojemne szafy. Stan mieszkania: dobry. Lokal znajduje się na pierwszym z dwóch pięter w budynku bez windy.
CO WYRÓŻNIA TO MIESZKANIE?
Przede wszystkim mieszkanie jest bardzo ciche. Znajduje się na osiedlu nieprzypominającym wielkomiejskich zabudowań. Na wyposażeniu znajdziemy wszystkie potrzebne sprzęty i niezbędne meble. Warto wspomnieć o przyjemnym sąsiedztwie i szerokiej dostępności wszelkiego rodzaju usług: sklepy spożywcze, Centrum Handlowe Sadyba Best Mall - w nim Cinema City, supermarket, siłownia, fitness club, fryzjer, kosmetyczka itp. Obok osiedla znajduje się ścieżka prowadząca przez ogródki działkowe aż do samego Jeziorka Czerniakowskiego.
DLA KOGO DEDYKOWANE JEST TO MIESZKANIE:
W mieszkaniu najlepiej będzie się czuła para, małżeństwo z dzieckiem lub bliscy znajomi, studenci.
WARUNKI NAJMU:
Proszę o zgłaszanie się chętnych osób niepalących, uczciwych oraz rzetelnych. Dodatkowe opłaty to zaliczka na prąd i wodę w wysokości 500zł/mies.
ZAPROSZENIE:
W celu umówienia prezentacji zapraszam do kontaktu telefonicznego lub poprzez zgłoszenie mailowe.
Zapraszam do obejrzenia wirtualnego spaceru po nieruchomości
Powyższa oferta ma charakter informacyjny i nie stanowi oferty handlowej w rozumieniu art. 66 §1 Kodeksu Cywilnego.
3 500,00 PLN (59,32 PLN / m2)
3-POKOJOWE MIESZKANIE NA ZIELONEJ SADYBIE, CICHE!
Mieszkanie na wynajem,
Warszawa, Augustówka
Dane szczegółowe
- Typ transakcji: wynajem
- Typ nieruchomości: Mieszkanie
- Lokalizacja: Warszawa Mokotów, Augustówka
- Powierzchnia:59 m2
- Liczba pokoi: 3
- Rok budowy: 2002
- Piętro: 1 z 2
- Numer oferty: 34964539191
- Cena: 3 500,00 PLN
- Cena za m2: 59,32 PLN
Kontakt z agentem: Pakuła Nieruchomości
Pakuła Nieruchomości
Opis nieruchomości
Wirtualny spacer po nieruchomości
Mapa
Kontakt z agentem
Pakuła Nieruchomości